保利罗兰国际四期

- / -

客厅

入户花园

户型图

饭厅

主卧

次卧1

次卧2

次卧3

厨房

主卫

客卫

阳台

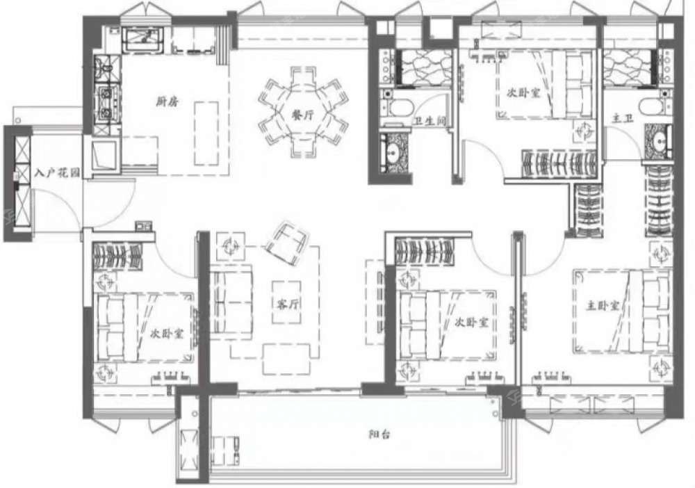
客厅
入户花园
户型图
饭厅
主卧
次卧1
次卧2
次卧3
厨房
主卫
客卫
阳台
/

保利罗兰国际四期

元/月
关注

0人关注

  • 面积

    平米

  • 房屋户型

    

  • 楼层

    中楼层(共31层)

  • 房屋朝向

  • 地铁

    黄埔有轨电车1号线 - 线坑 - 629米

  • 小区

    保利罗兰国际四期

  • 位置

    黄埔区 

房源经纪人:

18198940975

天河区

该房源熟悉度:

90%
房源编号:100809307746

基本信息

基本属性

  • 发布

    2天前发布

  • 入住

    2025-12-23

  • 租期

    一年

  • 看房

    提前预约随时可看

  • 楼层

    中楼层/31层

  • 电梯

    有电梯

  • 面积

    平米

  • 用水

    民水

  • 用电

    民电

  • 燃气

  • 租赁方式

    整租

  • 付款方式

    付一押二

配套设施

  • 空调

  • 电视

  • 冰箱

  • 热水器

  • 洗衣机

  • 天然气

  • 衣柜

  • WIFI

  • 沙发

周边配套

同小区在租房源

下载裕丰APP

扫描左侧二维码 随时查看新房源 了解更多

关注裕丰公众号

扫描左侧二维码 查看裕丰地产企业信息 了解更多

Copyright © 2015 裕丰地产网, All Rights Reserved
网络经营许可证: 粤ICP备12078563号  粤ICP备2020128948号-1