万科黄埔仓 

- / -

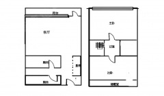
客厅

客厅

客厅

户型图

楼梯

过道

主卧

次卧

厨房

主卫

主卫

阳台

客厅
客厅
客厅
户型图
楼梯
过道
主卧
次卧
厨房
主卫
主卫
阳台
/

万科黄埔仓 



元/月
关注

0人关注

  • 面积

    .平米

  • 房屋户型

    

  • 楼层

    低楼层(共22层)

  • 房屋朝向

  • 地铁

    13号线 - 双岗 - 598米

  • 小区

    万科黄埔仓

  • 位置

    黄埔区 江南大道南

房源经纪人:

15817166681

黄埔区

该房源熟悉度:

90%
房源编号:100800502415

基本信息

基本属性

  • 发布

    1天前发布

  • 入住

    2023-03-18

  • 租期

    一年

  • 看房

    提前预约随时可看

  • 楼层

    低楼层/22层

  • 电梯

    有电梯

  • 面积

    .平米

  • 用水

    商水

  • 用电

    商电

  • 燃气

  • 租赁方式

    整租

  • 付款方式

    付一押二

配套设施

  • 空调

  • 电视

  • 冰箱

  • 热水器

  • 洗衣机

  • 天然气

  • 衣柜

  • WIFI

  • 沙发

周边配套

同小区在租房源

江南大道南在租房源

下载裕丰APP

扫描左侧二维码 随时查看新房源 了解更多

关注裕丰公众号

扫描左侧二维码 查看裕丰地产企业信息 了解更多

Copyright © 2015 裕丰地产网, All Rights Reserved
网络经营许可证: 粤ICP备12078563号  粤ICP备2020128948号-1