仰忠西街

- / -

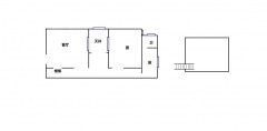
客厅

户型图

私有天台

主卧

厨房

主卫

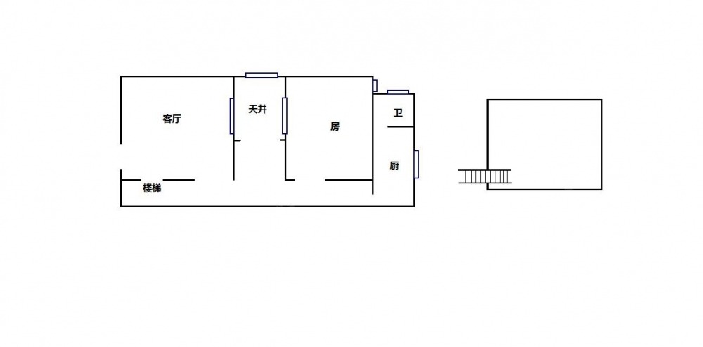
客厅
户型图
私有天台
主卧
厨房
主卫
/

仰忠西街



元/月
关注

0人关注

  • 面积

    平米

  • 房屋户型

  • 楼层

    低楼层(共9层)

  • 房屋朝向

    保留

  • 地铁

    6号线 - 北京路 - 56米

  • 小区

    仰忠西街

  • 位置

    越秀区 

房源经纪人:

15818858910

越秀区

该房源熟悉度:

95%
房源编号:100806716785

基本信息

基本属性

  • 发布

    18天前发布

  • 入住

  • 租期

    一年

  • 看房

  • 楼层

    低楼层/9层

  • 电梯

    无电梯

  • 面积

    平米

  • 用水

    其他

  • 用电

    其他

  • 燃气

  • 租赁方式

    整租

  • 付款方式

    付一押二

配套设施

  • 空调

  • 电视

  • 冰箱

  • 热水器

  • 洗衣机

  • 天然气

  • 衣柜

  • WIFI

  • 沙发

联系经纪人
  • 华作俊
    我最近带看本房0次,了解本房特色
    15999951527

    该房源熟悉度:

    90%

周边配套

下载裕丰APP

扫描左侧二维码 随时查看新房源 了解更多

关注裕丰公众号

扫描左侧二维码 查看裕丰地产企业信息 了解更多

Copyright © 2015 裕丰地产网, All Rights Reserved
网络经营许可证: 粤ICP备12078563号  粤ICP备2020128948号-1