共和西路

- / -

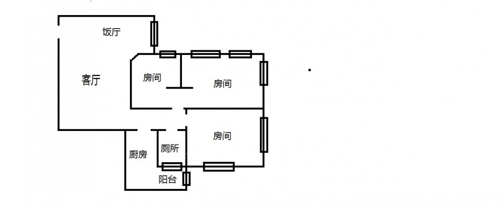
客厅

主卧

次卧1

次卧2

厨房

主卫

阳台1

阳台2

客厅
主卧
次卧1
次卧2
厨房
主卫
阳台1
阳台2
/

共和西路

元/月
关注

0人关注

  • 面积

    .平米

  • 房屋户型

  • 楼层

    中楼层(共31层)

  • 房屋朝向

  • 地铁

    1号线 - 杨箕 - 670米

  • 小区

    共和西路

  • 位置

    越秀区 

房源经纪人:

18811843664

越秀区

该房源熟悉度:

100%
房源编号:100800370314

基本信息

基本属性

  • 发布

    7天前发布

  • 入住

    2025-11-22

  • 租期

    一年

  • 看房

    提前预约随时可看

  • 楼层

    中楼层/31层

  • 电梯

    有电梯

  • 面积

    .平米

  • 用水

    其他

  • 用电

    其他

  • 燃气

  • 租赁方式

    整租

  • 付款方式

    付一押二

配套设施

  • 空调

  • 电视

  • 冰箱

  • 热水器

  • 洗衣机

  • 天然气

  • 衣柜

  • WIFI

  • 沙发

联系经纪人
  • 吴威成
    我最近带看本房0次,了解本房特色
    13533557268

    该房源熟悉度:

    95%

周边配套

同小区在租房源

下载裕丰APP

扫描左侧二维码 随时查看新房源 了解更多

关注裕丰公众号

扫描左侧二维码 查看裕丰地产企业信息 了解更多

Copyright © 2015 裕丰地产网, All Rights Reserved
网络经营许可证: 粤ICP备12078563号  粤ICP备2020128948号-1