保利林海山庄

- / -

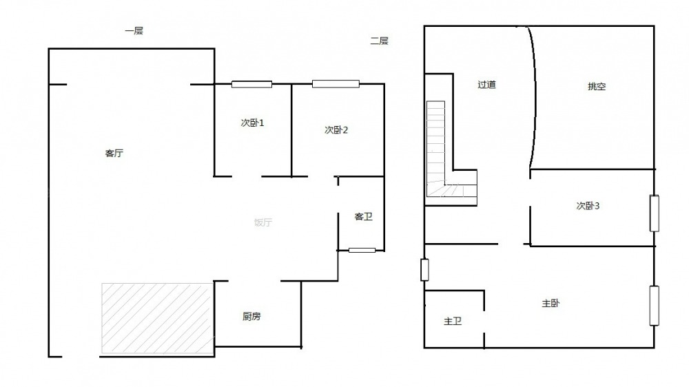
客厅

户型图

楼梯

玄关

过道

饭厅

主卧

次卧1

次卧2

次卧3

厨房

主卫

客卫

阳台

客厅
户型图
楼梯
玄关
过道
饭厅
主卧
次卧1
次卧2
次卧3
厨房
主卫
客卫
阳台
/

保利林海山庄

 元/m²

关注

0人关注



低楼层/共36

保留

平层/毛坯

.平米

2017年建/塔楼

房源经纪人:

13760607001

天河区

该房源熟悉度:

100%

基本信息

基本属性

  • 房屋户型

    

  • 所在楼层

    低楼层(共36层)

  • 建筑面积

    .

  • 户型结构

    平层

  • 套内面积

    暂无数据

  • 建筑类型

    塔楼

  • 房屋朝向

    保留

  • 建筑结构

    钢混结构

  • 装修情况

    毛坯

  • 梯户比例

    一梯五户

  • 配备电梯

    有电梯

  • 产权年限

    70年

交易属性

  • 挂牌时间

    2025-10-09

  • 交易权属

    商品房

  • 房屋用途

    普通住房

  • 房屋年限

    满五年

  • 产权所属

    非共有

  • 两证一书

    未上传房本照片

  • 抵押信息

    有抵押

  • 房源信息编码

    1250375681

注:房源所示”房屋用途、交易权属、建成年代、产权年限、建筑结构“仅供参考,购房时请以房本信息为准。

房源特色

房源标签

近地铁

满五年

注:土地使用证起止年限详见业主土地证明材料或查询相关政府部门的登记文件。

户型分间

房源照片

客厅
户型图
楼梯
玄关
过道
饭厅
主卧
次卧1
次卧2
次卧3
厨房
主卫
客卫
阳台
查看更多图片

房贷计算器

税费计算器

商业贷款
公积金贷款
组合贷款
按贷款总额
按房屋总价
万元
万元
万元
%
BP()
% + = %
7折
7.5折
8折
8.5折
9折
最新基准利率
1.05倍
1.1倍
1.2倍
1.3倍
%
最新基准利率
1.1倍
1.2倍
%
万元
30年
25年
20年
15年
10年
5年
开始计算
类型 等额本息还款 等额本金还款
月供 0 0
每月递减0
还款月数 0 0
总利息 0 0
本息合计 0 0

注:本次计算仅作为购房参考,不能作为最终的购房依据,了解相对准确方案,建议咨询经纪人。有意见或建议你可以提交意见反馈

  • 小区均价
    58257 元/m²
  • 建筑类型
    塔楼

周边配套

同总价新房

我要卖房

下载裕丰APP

扫描左侧二维码 随时查看新房源 了解更多

关注裕丰公众号

扫描左侧二维码 查看裕丰地产企业信息 了解更多

Copyright © 2015 裕丰地产网, All Rights Reserved
网络经营许可证: 粤ICP备12078563号  粤ICP备2020128948号-1