基本属性
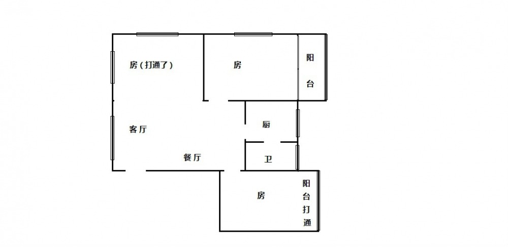
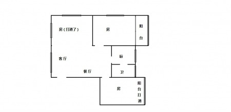
房屋户型
室厅厨卫
所在楼层
低楼层(共36层)
建筑面积
.m²
户型结构
平层
套内面积
暂无数据
建筑类型
塔楼
房屋朝向
南
建筑结构
钢混结构
装修情况
普通装修
梯户比例
一梯五户
配备电梯
有电梯
产权年限
70年
交易属性
挂牌时间
2025-10-27
交易权属
商品房
房屋用途
普通住房
房屋年限
满五年
产权所属
共有
两证一书
未上传房本照片
抵押信息
无抵押
房源信息编码
1240351289
注:房源所示”房屋用途、交易权属、建成年代、产权年限、建筑结构“仅供参考,购房时请以房本信息为准。
房源标签
近地铁
满五年
注:土地使用证起止年限详见业主土地证明材料或查询相关政府部门的登记文件。
注:本次计算仅作为购房参考,不能作为最终的购房依据,了解相对准确方案,建议咨询经纪人。有意见或建议你可以提交意见反馈
扫描左侧二维码 随时查看新房源 了解更多
扫描左侧二维码 查看裕丰地产企业信息 了解更多
Copyright © 2015 裕丰地产网, All Rights Reserved
网络经营许可证:
粤ICP备12078563号 粤ICP备2020128948号-1