基本属性
发布
1天前发布
入住
租期
一年
看房
楼层
高楼层/29层
电梯
有电梯
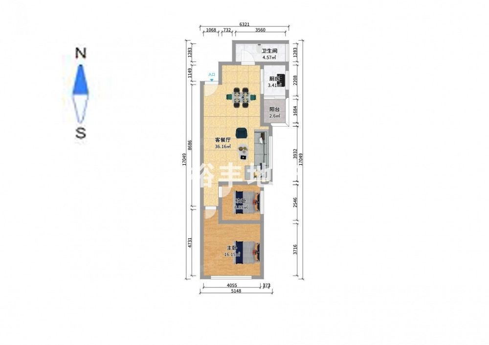
面积
.平米
用水
民水
用电
民电
燃气
有
租赁方式
整租
付款方式
付一押二
配套设施
空调
电视
冰箱
热水器
洗衣机
天然气
床
衣柜
WIFI
沙发
荣基翠堤湾 室厅 m²
荣基翠堤湾 室厅 m²
荣基翠堤湾 室厅 m²
扫描左侧二维码 随时查看新房源 了解更多
扫描左侧二维码 查看裕丰地产企业信息 了解更多
Copyright © 2015 裕丰地产网, All Rights Reserved
网络经营许可证:
粤ICP备12078563号 粤ICP备2020128948号-1